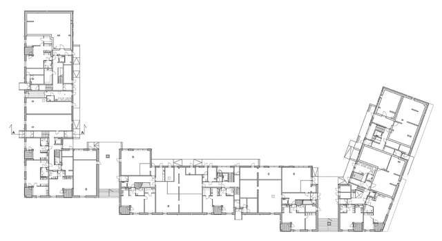
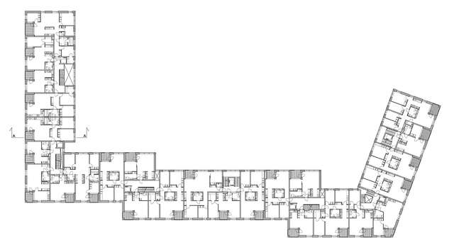
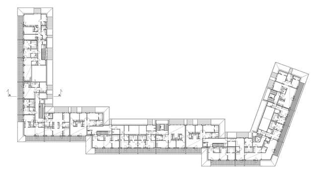
Kaanaankatu Housing

Extract from the Finnish Architecture Biennial Review 2014 jury report:
“The U-shaped volume creates a cleanly articulated block and urban space. The fenestration is simple and unpretentious, yet rhythmically engaging enough to avoid monotony. In the courtyard, the use of precast concrete elements is an ingenious solution both from an engineering and architectural perspective. The animated appearance of the elevations is expressive yet calming at the same time. Rather than attempting to disguise the joints between the concrete elements, the architects have used them to ambitious effect – the rhythm they create brings the music of architecture to life.”
Architect
Completion
2012
Gross Area
14785 m²
Category
Tag
Location
Kaanaankatu 6, Suomi
Get directionsGallery














0) { resetZoom(); currentImageIndex--; currentImage = images[currentImageIndex].src; }"
@keydown.window.arrow-right="if (currentImageIndex < images.length - 1) { resetZoom(); currentImageIndex++; currentImage = images[currentImageIndex].src; }">
/











