Isokylä Community Centre Puhto
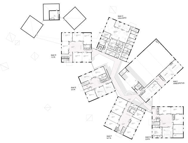
The Isokylä Community Centre in Kokkola, known as Puhto, comprises nine cube-shaped blocks housing schools, daycare, and youth facilities, arranged to create a village-like environment.

The Jatuli, according to Finnish folklore, were giants who lived along the coasts of Ostrobothnia where Kokkola is situated. From distance, the basic layout of Isokylä Community Centre looks like giant-sized dices of different colours cast by a giant: instead of one large building volume, the multipurpose complex comprises nine cube-shaped blocks arranged in a seemingly random order. The layout creates a vivid village-like environment fitting for the residential neighbourhood. The name of the complex “Puhto” is an old Ostrobothnian word for a small village or the local traditional grouping of houses.
The complex houses a primary school for grades 1–6, a school for disabled children of grades 1–9, a daycare centre, maternity clinic and youth centre. Altogether some 500 pupils use the building daily.
The different functions are divided into different blocks, according to the age of the children. The older children have spaces in the larger blocks and the younger in smaller ones. The combined central hall and canteen connect the different cubes together creating a “village road” inside the complex. The village-like character of the complex emphasises equality and sense of community, which are the guiding principles of the building’s day-to-day operations.
The theme ‘giant’ is reflected in a nine-part spatial artwork “Jatulintarha” by artist Jaana Partanen and architect Heikki Lamusuo, inspired by the prehistoric constructions, signs and symbols found in the area. The artwork is fully integrated with the concrete walls and floors and spreads out through the whole complex.
Text: Petteri Kummala
Location
Kallisentie 10, Kokkola
Get directionsGallery



















