Hyytiälä Forestry Field Station
The new additions to the University of Helsinki’s forestry field station use cross-laminated timber to create durable living and working spaces while respecting the historic campus landscape.

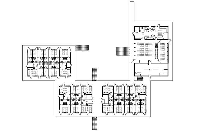
With the new buildings, the University of Helsinki’s forestry field station has gained a new main building and three new halls of residence. For more than a hundred years, this multi-disciplinary research centre has been used to train, and provide accommodation for, forest managers and other professionals of the future. The land on which the station sits was gifted to forestry students by the then-Senate of Finland in April 1910. Designed by architects Theodor Granstedt and Ricardo Björnberg at the Board of Public Buildings, the first structures on the site were completed later that same year. These original buildings will remain in service as additional accommodation and social spaces.
Today, the site is also home to a research and office building designed by Olof Hansson in the late 1950s, as well as a main building from the 1970s that first allowed the field station to be used year-round. There may be a gap of more than 110 years between the first and latest buildings here, but, in that time, the site has become very good indeed at allowing new additions to merge effortlessly with the multiple extant layers of history.
The new group of buildings, erected on what was once a football pitch, exert an assertive presence here, much like a particularly dignified millipede. Sightlines extend in multiple directions through and between the buildings, providing expansive views of the surrounding landscape. Built with CLT panels, the new buildings are suitable for year-round use, offering space for up to 88 guests, whether they are forestry students here for a longer stay or researchers stopping by for a conference. The balconied rooms succeed in providing an abundance of privacy. Careful thought has gone into ensuring that even the smaller rooms can comfortably accommodate two residents with plenty of personal space for both. Thanks to the clever design, they can even be used for small-scale meetings and remote working. All rooms come with their own private outdoor entrances. Wrapping around the building is a terrace that acts almost like an extension of the indoor spaces, offering the perfect drying area for wet kit for residents returning from a day out in the forest.
What the terrace also does is insightfully add a social dimension to the rooms, deftly swerving the kind of motel-like feel that often afflicts halls of residence of this kind while doing so. A communal patio area has also been provided between the pavilions. The terrace is elevated and accessed from ground level via a bridge. Multiple sets of stairs also provide access in a number of directions.The decision to raise the building off the ground is a highly practical one: come the winter season, Hyytiälä will invariably receive high levels of snowfall and the structures are now protected from the wear and tear that entails. At an early stage in the project, the lifespan of the building was set at 150 years, which would have been unachievable without this structural arrangement. The decision also means that the architecture here is unconstrained by the limits imposed by the ground conditions, offering an interesting reinterpretation of early 20th century Modernism, this time set in a quintessentially Finnish lakeside landscape. What is particularly significant about this is that, in creating a new “understructure”, the architect is elevating the visitor and bringing the lake “closer” to them. The effect is one of finding yourself on the upper deck of a great steamboat.
From this vantage point, the residents’ relationship with the surrounding landscape changes too: as they leave their rooms behind, the researchers are in effect “descending” into nature. This particular feature derives directly from the modern architecture handbook, but the take on the hero trope here has an earthy and approachable quality to it. Over time, the area will become covered with trees and other vegetation planted by the students, and the buildings’ relationship with the ground on which they stand will continue to evolve.
Source: Henri Käpynen’s review in Finnish Architectural Review 4/2024
Location
Hyytiäläntie 124, Juupajoki
Get directionsGallery
















