House of Learned Societies
House of Learned Societies was originally designed and built for the use of Lisa Hagman’s Private Classes school.

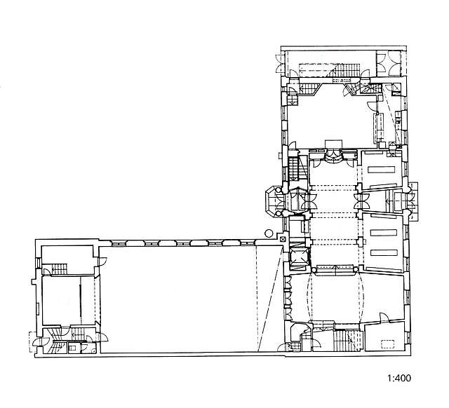
Teacher and the director of the school, Lisa Hagman (1882–1950) commissioned young architect Elsa Arokallio to design a five-story school building to Kirkkokatu, Kruununhaka, near the city centre of Helsinki. Lisa Hagman, as well as her aunt Lucina Hagman (1853–1946), who had originally established the private school, were active members of the women’s rights movement. It was natural to choose a female architect to design the new school building. Lisa Hagman’s Private Classes, representing Nordic Classicism, was completed in 1925. The gymnastics hall, also designed by Elsa Arokallio, was constructed already in 1922. It is located in the courtyard and has a red brick façade. Lisa Hagman’s Private Classes was one of the most significant works of Elsa Arokallio, who was among the pioneering female architects in Finland in the early 20th century.
In 1996 the building was refurbished, and since then it has been the House of Science and Letters. The principal architects of the refurbishment and restoration were Vilhelm Helander and Pekka Kivisalo. The classrooms were turned into meeting rooms of the scientific associations. The gymnastics hall is a lecture hall. A café is situated on the ground floor.
Source: Finnish Architectural Review 1/2000
Gallery
Location
Kirkkokatu 6, Helsinki
Get directions






















