Hertta Daycare Centre
Set beside the remaining wooden houses of early 20th-century Pasila, the Hertta Daycare Centre forms a sheltered courtyard ensemble that bridges old and new.

A piece of early 20th century wooden Pasila, complete with yards and greenery, has survived in Hertanmäki, in the northern part of Länsi-Pasila, amid all the compact new buildings there.
The Hertta Daycare Centre is immediately adjacent to complex of preserved buildings from the old wooden Pasila. Together with the wooden houses, the daycare centre forms a little sheltered yard complex with rocky outcrops, trees and lilac bushes.
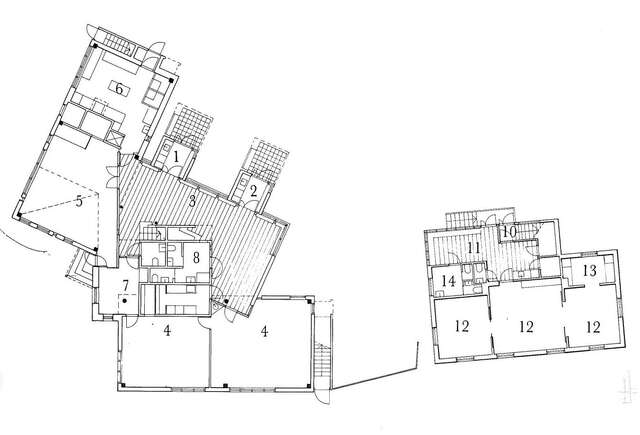
The daycare centre is in three parts. The two-storey wings clad in weatherboarding are separate buildings on the streets Pasilan puistotie and Leankatu. Between them, there is a high lobby with a sloping roof; the large window-wall faces the yard, while the side facing the square is narrow, towerlike and plaster-covered. There are interesting views of the interiors and the yard and square from the open lobby stairway and the first-floor gallery.
The daycare centre has space for two groups of children, plus a high play hall, a kitchen and staff facilities. It was designed to be used as a block school with minimal conversions.
The renovated wooden house next door holds the half-day group facilities, with a flat and the daycare office on the first floor.
The daycare centre was designed by Kari Järvinen and Timo Airas. They were assisted by Sirkkaliisa Jetsonen, Heli Lipponen, Taina Silmujärvi and Matti Huuri.
Source: Finnish Architectural Review 6/1987
Location
Leankatu 6, Helsinki
Get directionsGallery





















