Helsinki University Porthania Building
The modernistic Porthania Building involved innovative and experimental solutions, such as the use of prefabricated elements and pre-stressed concrete beams.

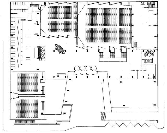
Porthania is part of the city centre campus of the University of Helsinki. The building is based on Aarne Ervi’s winning entry in an open architectural competition held in 1949. The building comprises five big lecture halls, the biggest of which seats 650, and several smaller lecture halls and other teaching facilities, as well as a restaurant, a gym and healthcare facilities for students to use.
The modernistic Porthania Building involved innovative and experimental solutions, such as the use of prefabricated elements and pre-stressed concrete beams. The long spans enabled flexible positioning of the partitions, allowing users to adapt spaces for future needs.
Early on in his career, Ervi had worked as an assistant to Alvar Aalto, and reflections of Aalto’s works may be seen in Porthania, such as the circular skylights of the lecture halls. The interior and furniture design are also by Ervi and his office, thus creating a Gesamtkunstwerk of the entity.
Restoration of the building by NRT Architects was completed in 2006.
Location
Yliopistonkatu 3, Helsinki
Get directionsGallery


























