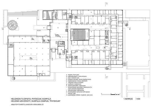
Helsinki University Physicum Building

Physicum is located in Kumpula district, outside the city centre. Kumpula campus is one of the campus areas in which laboratory, teaching and research facilities of various university departments are concentrated on. It houses the Department of Physical Sciences, as well as its campus library. Kumpula hill is one of the highest spots in the city’s topography, which gives Physicum and the whole campus area an important role both symbolically and from a landscape point of view.
The construction of the building started after an architectural competition held in 1997. The winning entry was designed by Lahdelma & Mahlamäki Architects. The building was completed in 2001.
The main concept of the building’s design is functionally and architecturally dense units, which are grouped along with a commonly used external space. Whitened concrete block and an untreated aluminum grid are the main materials of the facades and are also repeated inside the building. The wood and veneer surfaces create colour and warmth to the pedestrian routes beside the building.
Sources:
http://www.ark-l-m.fi/projects/education/physicum-university-of-helsinki-helsinki-finland/
Location
Väinö Auerin katu 11, Helsinki
Get directionsGallery






























