Helsinki Federation of Parishes

Helsinki Federation of Parishes is an office and assembly building in the middle of the Kallio district. The five-storey building was designed by architect Tuula Mäkinen from Kaija and Heikki Siren Architects in 1977, and it was completed in 1979.
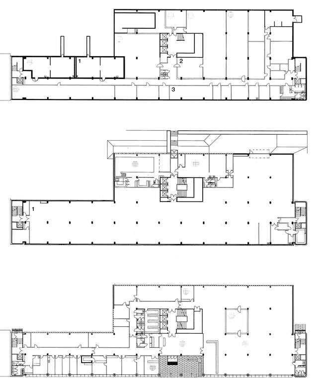
The building is part of the perimeter block in the Kolmas linja street. The main assembly hall opens with big windows to the courtyard. Office spaces are organised on the street side of the building. The strip windows are a focal feature on the street façade and granite stone is the main façade material.
Architects
Completion
1979
Category
Tags
Location
Kolmas linja 22, Helsinki
Get directionsGallery










0) { resetZoom(); currentImageIndex--; currentImage = images[currentImageIndex].src; }"
@keydown.window.arrow-right="if (currentImageIndex < images.length - 1) { resetZoom(); currentImageIndex++; currentImage = images[currentImageIndex].src; }">
/















