Government Office Building in Rauma

The design competition for the government office building in Rauma (1985–86) was part of the facelift programme of the National Board of Public Building, aiming at scaling down government office buildings to a more human dimension. The aim of the competition as defined in the brief was to develop a new kind of office environment instead of a mind-numbing bureaucratic labyrinth of corridors, and to use architectural means to create an image suitable for government construction. The latter aim required that the run-of-the-mill office building room programme had to be cast into a shape which would look like not just any old office building, but one government office building in particular. At the same time, a consciousness of the existence of a hierarchic power structure has been maintained. The functional motivation for the venture was to assemble the many government functions scattered around the Rauma area all under one roof.
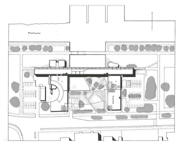
The result was a long, sticklike building laid lengthwise along the canal. At the centre of the building is a gallery space running the length and height of the entire building. The public facilities are concentrated on the floor level of the gallery, an indoor street where it is easy to orient oneself. The office adjoining the service facilities – contrary to usual practice – are placed on two levels on the side corridors branching off from balconies, with interior windows linking them with the high gallery space. The gallery captures natural light from the south through a row of top windows extending the length of the building; the indoor space is thus a giant sundial which changes with the hours. Water is also included in the architecture, and even in the interior; the public service level (the indoor street) opens throughout its length towards the new water park created on the south side. The water park is balanced by the existing small boat marina on the opposite side of the canal. Together, they form an abstract gateway.
The maritime theme is visible in the materials and colours of the building and its detail. The design work was guided by the image of a great ship or bridge rather than a traditional building. The ship imagery was heightened by creating a sail-shaped hall (for civil marriages) and by emphasizing the courtrooms.
The frame of the building is made of lightweight concrete blocks laid in situ and roughly plastered; the floor of the gallery is made of concrete paving slabs to emphasize its outdoor character; the metal parts are mainly zinc-coated steel. The office wall of the indoor space was conceived as a warm heart to offset the coolness of the outward appearance and to create a traditional office environment in wood: the material chosen is pine, varnished in a reddish shade. The building is characterized by the human touch, great care having been given to the surface texture.
The principal architects of the building were Olli-Pekka Jokela and Pentti Kareoja. They were assisted by Jari Lepistö, Jukka Leinonen, Arto Huttunen, Aimo Nissi, Petteri Nisunen, Teemu Kurkela and Hilkka Hyvärinen.
Source: Finnish Architectural Review 2/1993
Location
Aittakarinkatu 21, Rauma
Get directionsGallery













