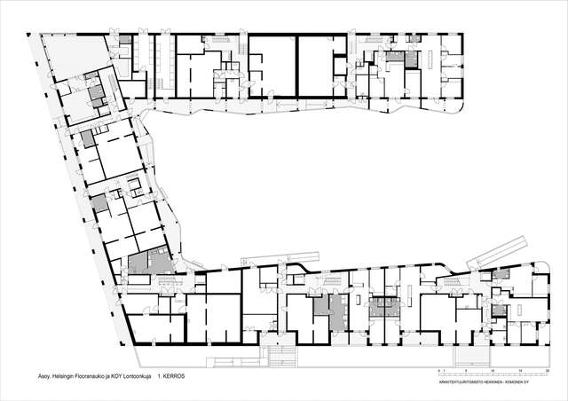
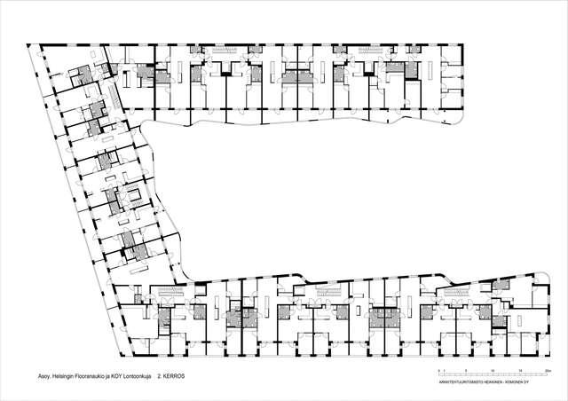
Flooranaukio Housing

Extract from the Finnish Architecture 2010-2011 jury report by Carl-Viggo Hølmebakk:
“The building is a compelling example of a city block with different architectural approaches to the outside and the inside. This apartment building offers great surplus value that the inhabitants can enjoy every day.”
Architect
Completion
2011
Gross Area
13530 m²
Category
Tag
Location
Flooranaukio 1, Helsinki
Get directionsGallery














0) { resetZoom(); currentImageIndex--; currentImage = images[currentImageIndex].src; }"
@keydown.window.arrow-right="if (currentImageIndex < images.length - 1) { resetZoom(); currentImageIndex++; currentImage = images[currentImageIndex].src; }">
/















