European Chemical Agency ECHA

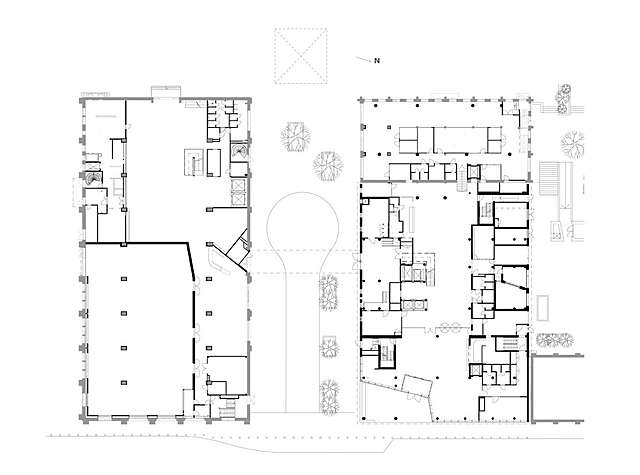
The new landmark building of Hietalahti bay was a project initiated by the European Union. The office building was designed for the European Chemical Agency ECHA. The site of the building is part of the old shipyard area, and the new office building was adjusted to the listed redbrick buildings, the workshop building by Theodor Höijer (1898) and the neighbouring machine workshop by Sune Macon (1916), which now houses a conference centre for the internal use of ECHA. A glazed bridge connects the two buildings. The redevelopment of the old shipyard area is based on the winning entry of the architecture competition in 2010–2011, won by the Danish firm Lundgaard & Tranberg Arkitekter.
ECHA strictly directed the design of the office building. The planning began in 2015, the construction in 2017 and the building was completed in early 2020. The principal architect of the building was Robert Trapp from L Architects. Architect Mari Ille and Timo Virtanen assisted him.
The monumental nine-storey building’s principal elevation material is corten steel, and it adjusts well with the historical redbrick workshop buildings of the shipyard area. Even the neighbouring historical factory building on the opposite side of Telakkakatu Street is made of red brick. The office floors are organised around the main foyer, which extends from the ground floor to the top floor. The main meeting room ’Black Box’ is situated in the old machine workshop.
Source: Finnish Architectural Review 2/2020
Location
Telakkakatu 6, Helsinki
Get directionsGallery
























