Conservation Centre of the Seurasaari Open-Air Museum
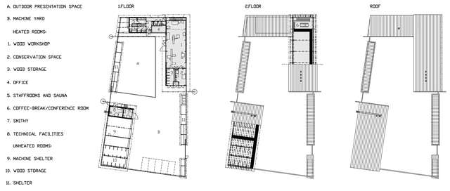
The conservation centre echoes the layout of traditional Finnish farmsteads, with a timber workshop at its heart and surrounding yards for machinery and demonstrations.

Seurasaari Island is located in Helsinki, Meilahti area. It is attached to the mainland by a bridge and its open-air museum exhibits Finnish cultural heritage. The Conservation Centre of Seurasaari was a direct commission to Häkli Architects and it was completed in 2009. It achieved Puupalkinto 2009, an annual award to celebrate high-quality Finnish wood-architecture.
The concept of the building follows the idea of an old Antti farmstead at the Seurasaari Open-Air Museum, where buildings and fences form a sheltered farm-yard. A wood-workshop function as a main space in the centre and is used for conservation and maintenance work of the buildings in the Open-Air Museum. The yard of the centre is divided into two areas, one for machinery and one for demonstrations.
The load-bearing structure of the workshop building consists of double columns made of solid-timber. The space between the tied double columns is used for services. Laminated timber beams support the roof and extend outside the building to carry the eaves. The external walls are easily maintained and durable. The main building’s greyish coloured spruce surfaces are contrasted by the black-tarred pine boards cladding the storehouses.
The building honors the high-standard principles of Finnish timber building.
Location
Seurasaarentie, Helsinki
Get directionsGallery

















