Concert and Congress Hall Mikaeli
The concert and congress hall aligns with the town’s main axis, with glass-walled foyers overlooking the park and pond.

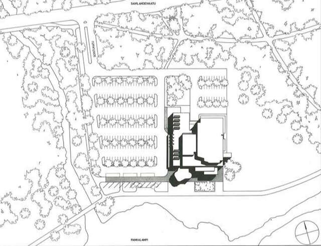
Mikaeli Concert and Congress Hall is positioned on the site so as to place it on the same axis as the cathedral and railway station in the town’s grid plan. It has been made the western endpoint of Kirkkokatu, and in the evening, particularly, the illuminated cathedral tower can be seen from the foyers and café. The foyers have glass walls reaching right up to the eaves, looking out onto the surrounding park and providing a view of the whole of the Pankalampi pond. Similarly, the foyers are reflected in the water. They are predominantly in a neutral pale shade, their main feature being precisely this wide-open view through the glass walls. The undulating elevations mean that the same space can be experienced both indoors and out.
The main concert hall (Martti Talvela Hall) has 694 seats (522 in the stalls and 172 in the gallery). The stage area is 180 m2, allowing for performances with a large orchestra and full choir. It is also suitable for ballet and other dance performances. For dramatic performance a proscenium arch can be created with a lightning unit which can be lowered from above, turning the concealed upper part of the stage into a small ‘stage tower’. The width and depth of the stage can be determined with curtains. The hall also has a screen, sound reproduction and AV and interpreting equipment for conferences and congresses.
The chamber music hall has 166 seats and a 55m2 platform. It can be used for recitals and chamber concerts, rehearsals, recitations, conferences and lectures. It has a screen, blackboard and AV equipment. The pale neutral shade used for the interiors creates a good background for works of art. So far, Timo Sarpaneva’s glass sculpture ‘Creatura’ and Jorma Hautala’s painting ‘Ilman ja veden läpi’ have been acquired for the foyers.
The main elevation materials are brushed white concrete elements, Lapland marble and glass.The building was officially opened on November 18, 1988.
Source: Finnish Architectural Review 2/1989
Location
Sointukatu 1, Mikkeli
Get directionsGallery























