Children's Home
The central features of the functional idea were family-oriented working methods, homelike living and the services of the institution’s special school.

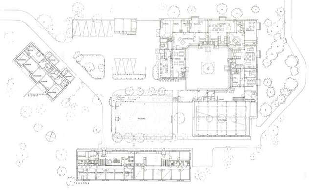
The Espoonlahti children’s home was build for a child welfare institution for the rehabilitation of 7 to 17-year-olds requiring psychological and social support, especially children with problems at school. The institution was designed to accommodate 12 children.
The central features of the functional idea were family-oriented working methods, homelike living and the services of the institution’s special school. The children were planned to live in two groups of six, each with their apartments and staff. Comprehensive teaching equipment, materials and rooms, for both general and special teaching were part of the plan.
The basis for the spatial planning and delineation of the children’s home was to place the dwellings and school in separate buildings, separating them clearly from each other. Another principle was to locate the children’s home beside Merisaapas school. The buildings of the children’s home were to be placed so that they form their closed yard without any ‘visible’ fence between the school and the children’s home.
The site is a wooded slope sloping south-southeast; the elevation differences is some three metres. The buildings have been placed beside and around yards – an atrium for the school and a grass yard for the dwelling – on different levels, diagonally interconnected and opening to the southeast and the wooded area.
The plan of the dwelling building uses a mezzanine, the living quarters being placed off a balcony half a storey above the living room, and the music and hobby rooms in the lowest storey. The school building is an atrium with direct access to the classrooms from the yard.
The buildings are of red brick. The bearing structure comprises brick external walls and a row of glue-laminated wooden columns and beam in the middle of the buildings.
Architect Kirsti Nordin was an important force in the early stage of the public daycare in Finland. In the 1970s she worked at the National Board of Social Welfare developing standardisation of public daycare centres. Children’s home is an example of Kirsti Nordin’s ideas of child-centered architecture.
Source: Finnish Architectural Review 6/1987
Location
Merisaapas 6, Espoo
Get directionsGallery














