Arctia Shipping Headquarters

Extract from the Finnish Architecture Biennial Review 2014 jury report:
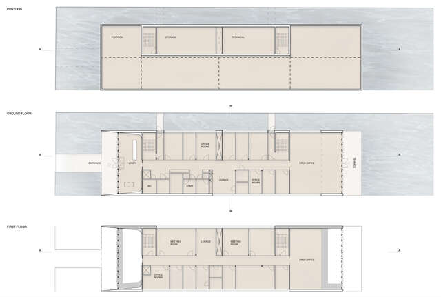
“When a piece of architecture becomes a new symbol for a business and, on top of that, is innovative and playful in its own right, this surely amounts to an achievement of great architectural merit. Arctia commissioned their floating headquarters to be located near their fleet, and K2S designed a horizontal building that rests on pontoons and relates elegantly to the icebreakers, yet is smaller in scale. The long façades are made of profiled black metal sheets, perforated with abstract ice crystal-like patterns, while the ends are glazed. The wood-covered interiors have an inviting atmosphere recalling old shipbuilding traditions.”
Completion
2013
Gross Area
1250 m²
Category
Tag
Location
Merikasarmin laituri, Helsinki
Get directionsGallery













0) { resetZoom(); currentImageIndex--; currentImage = images[currentImageIndex].src; }"
@keydown.window.arrow-right="if (currentImageIndex < images.length - 1) { resetZoom(); currentImageIndex++; currentImage = images[currentImageIndex].src; }">
/







