Åland Maritime Museum

The four-masted barque Herzogin Cecilie ran aground in dense fog on the Devon coast in April 1936. The wreck of the Åland shipowner Eriksson’s flagship marked the end of the era of great sailing ships. The captain’s cabin, complete with its panelling and furniture, salvaged from the ship along with Cecilie herself – the ship’s figurehead – ended up in the Åland Maritime Museum. Designed in the spirit of Nordic Classicism and Functionalism by architect Jonas Cedercreutz, the museum was opened in 1954.
The architecture of the exterior embodies a certain ”dare-devil” character, the natural stone cladding’s hues vary from grey to yellowy colour and copper, adapting chameleon-like to its context, both vegetation and buildings. The black stone of the stairs changes to grey in the last steps. The tactile and most prominent components, such as the oak handrails, panelling and furniture, have been carefully thought out.
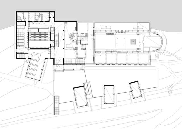
The competition for the museum extension in 2003 was won by architect duo Esa Kangas and Johanna Vuorinen. The extension contains the new entrance, an exhibition space as well as an auditorium, a library, and an office and storage facilities. There are activity areas for children in different parts of the building.
In the old museum, the building alteration was executed with respect for the building, ensuring compatibility with the existing fabric. The refurbishment was designed by Mustonen Architects. The top floor restaurant space has been preserved: Paavo Tynell’s lighting fixtures were restored, and the old dining set chairs were reupholstered with fabric similar to the original.
Text: Finnish Architectural Review 3/2013
Location
Hamngatan 2, Mariehamn, Åland Islands
Get directionsGallery




















