Åbo Akademi University ASA Building
The ASA radio factory complex was built in several stages, the oldest part in functionalist style. In 2010, it was repurposed to serve the Åbo Akademi University.

Åbo Akademi University has refurbished several old industrial buildings to accommodate its facilities. This has proved to be a viable solution with the Faculty of Arts Campus Arken, designed by Pekka Mäki from SIGGE Architects as well as the ASA Building in the neighbouring Vänrikinkatu street.
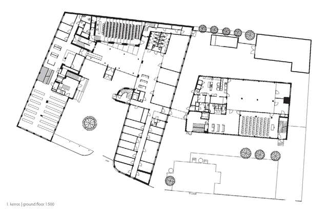
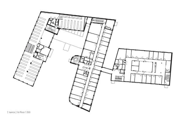
The ASA radio factory complex was built in several stages between years 1939–1964. The earliest part by architect Thor Lagerroos is in Functionalist style. The factory building has retained its identity. Few new openings have been made in the existing exterior walls. The new use is revealed in the semi-open courtyard. Adjoining the new entrance an airy, light-flooded hall has been built providing access to other parts of the building: the library, auditorium and work facilities. The systematic and efficient, almost oppressive spatial organisation has gained a fresh new look by the addition of the new entrance. The solution successfully repeats the approach adopted with the Arken building.
The close relation between Arken and tASA is evident on every scale. The concept or organising spaces around a glazed entrance hall work well with both building complexes. In both buildings, there is a geometrical, metal-clad airlock. A familiar feature is also the fading out of the interior-exterior boundary by extending glazing all the way to the ground and the use of a single, continuous material on the base plane. Even the made-to-order bicycle stand, first seen at Arken, has found its way to the ASA Building.
The modernity of the new-build spaces is accentuated, including their colour schemes and materials. The existing architecture has been utilised in a very unaffected manner. Major alterations to the frame have been avoided, with the exception of improved vertical access via new stairs. The refurbishment cannot be characterised as subtle, rather the contrary. All marks of wear and tear from former use have been masked, either by plaster or paint.
Text: Finnish Architectural Review 2/2011
Location
Vänrikinkatu 3, Turku
Get directionsGallery



















