Åbo Akademi University Arken Campus
The Faculty of Arts of Åbo Akademi University building, Arken, is a repurposed building within an old industrial block.

By the River Aura, in the historical centre of Turku, is an old ironworks block. The ironworks was founded in 1856, and it operated there until 1952. The oldest buildings in the block were designed by architect G. T. Chiewitz in 1856–1857, while the newest ones date back to the 1930s. The buildings are listed.
Today the block is occupied by the Faculty of Arts of Åbo Akademi University. The design of the faculty building, Arken, is based on a winning entry in an invited architecture competition.
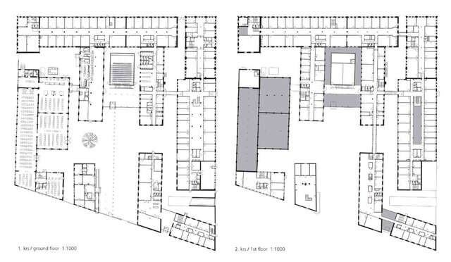
The renovation and extension work was carried out as four separate projects. The block comprises 13 separate building of varying styles and building materials, three of which are new. Auxiliary and parking facilities were housed underground.
All central activities were placed as close together as possible. The organising space is the courtyard, at the end of which is the glazed main entrance of the building. A new ”furnace”, housing the main lecture halls and an auditorium, was conceived as the heart of the block. The faculty offices, auditorium, joint lecture rooms and café were arranged around the entrance hall. Glazed corridors and bridges interlink the buildings.
An L-shaped new building replaced the old storage buildings. It delineates the street corner, encloses the courtyard, and continues the architectural tradition of the Piispankatu Street milieu by modern means. The joint faculty library was housed in the oldest building along Jokikatu Street.
Retaining the original spirit and industrial character of the place have been the guiding principles for the design work. The principal architect of the complex was Pekka Mäki.
Text: Finnish Architectural Review 5/2004
Location
Tehtaankatu 2, Turku
Get directionsGallery






















