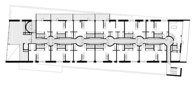
Aalto Inn
Situated near the Aalto University campus in Otaniemi, Aalto Inn offers self-catering accommodation for researchers and guests.

Extract from the Finnish Architecture Biennial Review 2014 jury report:
The streamlined building forms part of a great Finnish tradition whilst embracing a contemporary idiom. The thinly plastered white walls match the textured exterior of the neighbouring Otahalli sports hall designed by Alvar Aalto. This guesthouse is also used as a test site for monitoring energy consumption and intelligent building management solutions.
Architect
Completion
2012
Gross Area
4082 m²
Category
Tags
Location
Otaranta 4, Espoo
Get directionsGallery

















0) { resetZoom(); currentImageIndex--; currentImage = images[currentImageIndex].src; }"
@keydown.window.arrow-right="if (currentImageIndex < images.length - 1) { resetZoom(); currentImageIndex++; currentImage = images[currentImageIndex].src; }">
/















